Товарна, 6
Ціна: 2 398 000 USD
Продаж нового будинку площею 570,6 м² у Печерському районі по вул. Товарній.
Ремонт виконаний на 90%. Меблі частково встановлені, зокрема вбудовані.
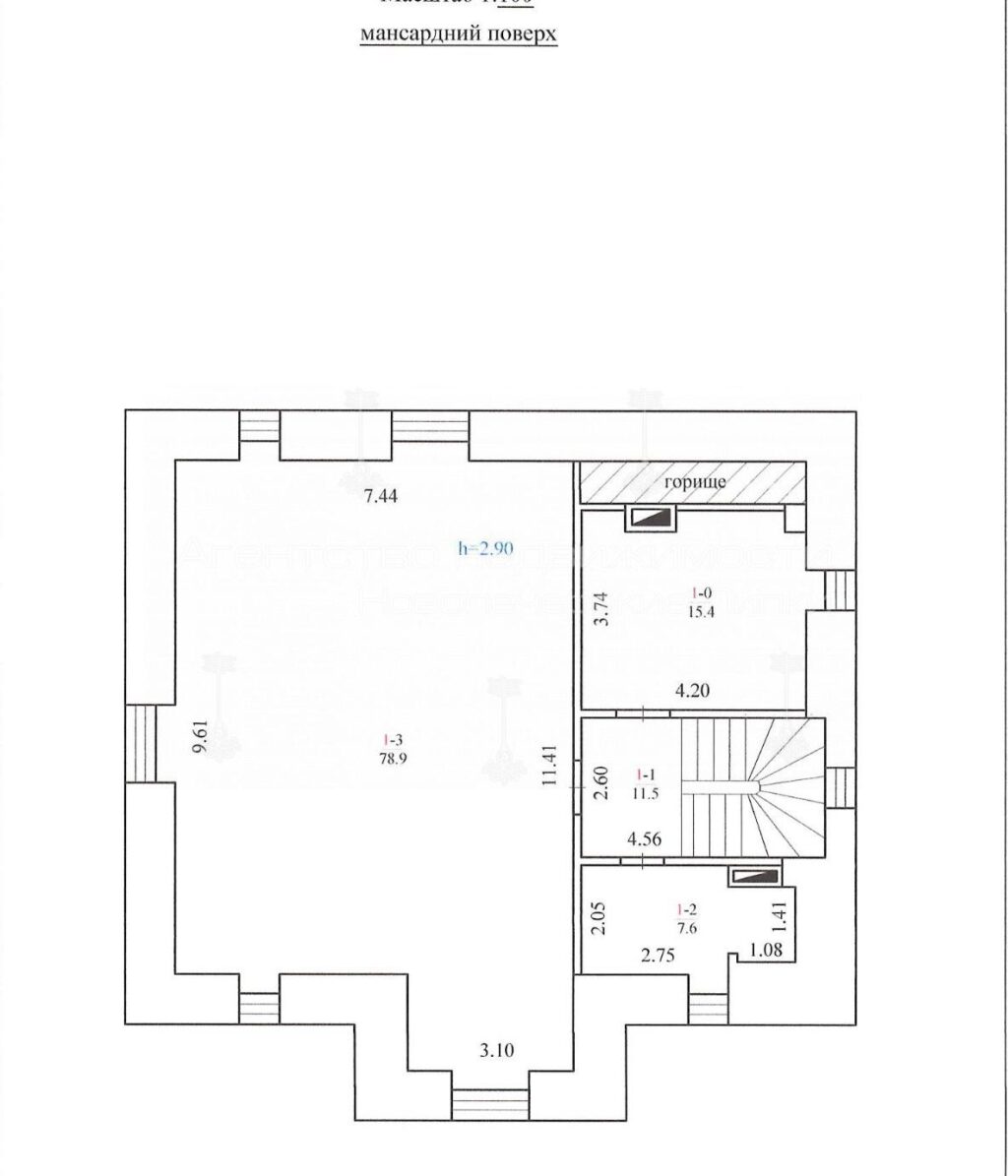
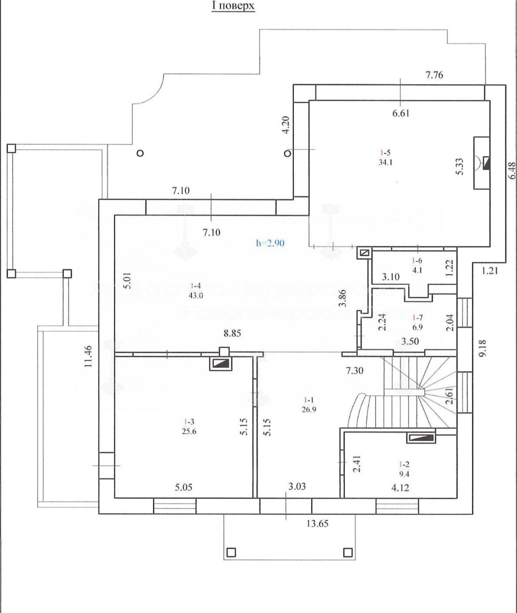
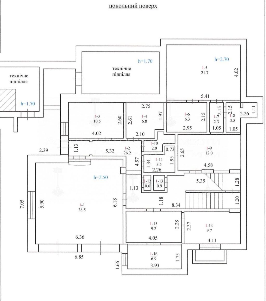
У будинку 4 рівні: цокольно-підвальний поверх, 1-й поверх, 2-й поверх (спальний) та мансардний поверх.
Будинок — монолітно-каркасний.
Стіни — газобетон Aeroc, керамічний блок 380 мм.
Перегородки — цегляні та з газобетону Aeroc.
Стіни утеплені екструдованим пінополістиролом товщиною 150 мм, що у 1,5 раза перевищує норматив.
Фасад виконаний з натурального каменю за індивідуальним проєктом. Абсолютно всі деталі — з природного українського каменю. Балкони оздоблені кам’яними поручнями та балясинами з прихованою декоративною підсвіткою. Площини зовнішніх стін — декоративна натуральна цегла Vandersanden Oud Herve 70.
Фасад має декоративне освітлення.
Покрівля — бітумна черепиця Metrotile Black. Водостічна система — алюмінієва, пофарбована у колір RAL 7024. Утеплення — мінеральна вата 350 мм. Мансардний простір теплий.
Огорожа — залізобетонний моноліт, облицьований плиткою з одеського вапняку, цоколь та накриття огорожі — пісковик.
На ділянці збудований залізобетонний басейн з лайнером, мармуровим бортовим каменем. Внутрішній розмір — 4,00 × 8,00 м. Вхід через римські сходи, скіммерна система, підсвітка, протитечія.
По ділянці виконано відведення дощової води на дорогу через систему дворової зливової каналізації.
Навколо будинку та по ділянці виконана дренажна система для відведення ґрунтових вод.
На ділянці облаштований стильний діючий камін, облицьований травертином. Топка викладена вогнетривкою цеглою «ялинкою». Гармонійно інтегрований в озеленення.
Тераси — травертин.
Озеленення виконувалося з любов’ю «для себе»: висаджені великі туї Smaragd, тис «парасолька» (бонсай), сосна Waterery «парасолька», червоний клен, клен-бонсай, сосни корейська та європейська, ялини — блакитна, каліфорнійська та класична, магнолії, тиси, декоративний граб, ялівці. У центрі передбачена зона під газон.
Автоматичний полив з керуванням через застосунок зі смартфона. Передбачене освітлення ділянки та зелених насаджень.
Є зона під міні-город, комора для інвентарю та склад з окремими входами.
Гараж на два автомобілі з входом у будинок. Перед гаражем — майданчик для розміщення трьох авто. Поруч, у 100 м, — критий паркінг у сусідньому багатоповерховому комплексі з мийкою, поряд СТО.
Вікна та балконні двері — дерево-алюміній. Укоси прорізів обшиті пофарбованими панелями з лиштвами в колір вікон RAL 9010.
Розсувні конструкції — дерево-алюміній. Центральні двері виконані з дуба.
Укоси прорізів для розсувних систем — панелі з лиштвами кольору RAL 8016.
Центральні вхідні двері — дерев’яні, колір RAL 9016. Передбачений другий вхід у будинок через цокольно-підвальний рівень — дуже зручно.
Усі скляні конструкції першого та цокольного рівнів — триплекс.
Гаражні ворота — Hörmann.
На другому поверсі передбачені захисні ролети для спальної зони.
На кухонній лоджії та терасі встановлені сонцезахисні маркізи з автоматичним керуванням.
Підлоги: у підвалі утеплення 100 мм екструдованого пінополістиролу, на інших поверхах — 50 мм; стяжка по сітці.
Цокольно-підвальний рівень: підлоги — дизайнерська плитка; SPA-зона — мармур Volokas Statuario, укладання «метелик», слебами.
Перший поверх: підлоги з мармуру Crema Marfil, Emperador Light, Emperador Dark, дизайнерське укладання. Плінтус — Emperador Dark. Стіни та стеля — фарбування.
Гостьовий санвузол: дизайнерське укладання Emperador Light та Nero Portoro з латунною розділювальною смугою 1 см. Стіни — комбінація мармурових плит і шпонованих панелей з американського горіха.
Другий поверх: лобі, спальні (майстер-спальня + 2 дитячі), гардеробні — інженерна паркетна дошка дуб, «французька ялинка», колір венге. Стеля і стіни — фарбування. У майстер-спальні — шпоновані панелі. Є дизайн-проєкт.
Ванна кімната майстер-спальні (2-й поверх): мармурові підлоги Diana Brown, стіни — Diana Brown та Volakas (слеби). Ванна з наповненням через сифон, окрема душова, окрема кімната санвузла з біде. Два умивальники, стільниця Diana Brown, тумба та шафа для білизни — шпон. Дзеркало індивідуального виготовлення з LED-підсвіткою.
Дитяча ванна (2-й поверх): мармурові підлоги Venice Black, стіни Venice Black та Kiknos Victoria (слеби). Аналогічне оснащення: ванна, душова, санвузол з біде, два умивальники, стільниця Venice Black, тумба та вбудована шафа зі шпону, дзеркало з LED-підсвіткою.
Мансардний поверх: підлоги холу та гостьової спальні — інженерна паркетна дошка дуб «французька ялинка»; зал — дубова паркетна дошка «широка палуба». Простір готувався під танцювальний зал, але може бути трансформований у більярдну, диско-зал, фітнес-зал тощо.
Санвузол мансарди: мармур Crema Marfil («угорська ялинка»), Emperador Light та Emperador Dark з латунною розділювальною смугою 1 см; окрема душова — Diana Reale; вбудований умивальник у стільниці Emperador Dark; тумба — шпон; дзеркало з LED-підсвіткою.
Підвіконня у будинку — мармурові.
Сходи — дубові сходинки, пофарбовані підсходинки та тятиви, дубові 3D-поручні, балясини.
Уся електрофурнітура — Vimar (Італія), у допоміжних зонах — Legrand.
Стелі — багаторівневі, з прихованою підсвіткою, виконані у сучасній класиці. Гіпсові багети відлиті за індивідуальними кресленнями для кожної зони.
Світильники — LED (Бельгія, Іспанія, Італія).
Передбачена підготовка під автоматичне керування шторами.
Двері цокольного рівня — DANAPRIS, дубовий шпон, індивідуальне виготовлення, ручки Tupai.
Двері на 1-му, 2-му та мансардному поверхах — індивідуальний проєкт Євгена Ткаченка, колір RAL 8022, частково зі склінням.
У камінному залі — діючий камін з топкою з вогнетривкої цегли «ялинкою», облицювання з мармуру Sakhara Noir. По обидва боки — вбудовані пенали у шпоних панелях для техніки та декору (є попередній проєкт).
Передбачена винна кімната з входом з камінного залу. Є передпроєкт з тризонним винним холодильником Liebherr, міні-кухнею, посудомийкою для келихів та мийкою.
Меблі для гардеробних — є попередній дизайн-проєкт.
Кухня виконана за індивідуальним проєктом: поєднання шпону американського горіха та фарбування. Каркаси — Egger. Острів з мийкою. Центральна двозонна мийка Franke BWX 220-54-27 TL WCR біля вікна. Верхні шафи — тоноване скло у прихованому алюмінієвому профілі. Окремий шафа-блок для «холодної кухні».
Стільниці та фартух — бразильський граніт Taurus Black, шовковиста поверхня.
Техніка: холодильники Miele (Side-by-Side), морозильна камера Siemens, духова шафа Miele Black, кавомашина Miele з підключенням до водопроводу, індукційна поверхня Miele з вбудованою вентиляцією. LED-підсвітка меблів.
Сантехніка — Villeroy & Boch, змішувачі — Hansgrohe (Німеччина) та Bellosta (Італія).
У гостьовому санвузлі (1-й поверх) — унітаз з електронним біде, кам’яна стільниця, тумба та шафа зі шпону американського горіха.
Усі меблі у санвузлах та ванних кімнатах виготовлені на замовлення за дизайнерськими кресленнями, стільниці — з мармурових слебів.
Передбачені датчики руху, прихована підсвітка, індивідуальні дзеркала з LED. У «мокрих» зонах — латунні розділювальні вставки 1 см.
Санвузол SPA-зони виконаний у стилі Prada. Умивальник — повністю з каменю, індивідуальний проєкт зі прихованим зливом.
У SPA-зоні встановлена джакузі RIHO Colorado Bliss2 діаметром 180 см (максимальна комплектація), окрема душова зона з холодним водоспадом-циліндром. Є передпроєкт хамаму.
У цокольному рівні — кімната охорони/домробітниці, кухня для персоналу, санвузол з душовою. Є зона, яку можна облаштувати як укриття.
Котельня — окреме приміщення, встановлена система очищення води Ecosoft для всього будинку.
Є пральня з окремою ванною для замочування білизни та прасувальна.
Інженерні мережі: заведено 49 кВт, 3 фази. Електрощитові — Moller, ABB, проводка — мідь, моноліт.
Газ — центральний.
Вода та каналізація — центральні.
Котли — Vaillant (2 шт.), конденсаційні, працюють у каскаді з керуванням через смартфон, бойлер ГВП — 500 л.
Опалення — теплі підлоги, радіатори та конвектори залежно від зони. Повністю автоматизоване з керуванням через застосунок. Надзвичайно ефективне.
Кондиціонування — Mitsubishi Electric City Multi: канальні системи на 1-2 поверхах, спліти на мансарді, можливий обігрів при низьких температурах, керування зі смартфона.
Щитова та серверна — в окремих приміщеннях.
Інтернет — оптоволокно, безшовна Wi-Fi мережа по всьому будинку, відеоспостереження, домофон, музика, домашній кінотеатр з проєктором та екраном 120", караоке в камінному залі.
Музика виведена також на ділянку.